長野県飯山市の空き家バンクから、 外様地区(信濃平エリア)の中古物件をご紹介します。

物件情報
| 登録No. | A331 |
| 分類 | 中古住宅(売買) |
| 所在地 | 飯山市大字緑 (外様地区 中条区) |
| 価格 | 320万円 |
| 間取り | 6DK |
| 土地面積 | 616.26㎡ |
| 建物面積 | 116.67㎡ |
| 利用状況 | 令和4年から空家 |
| 補修の要否 | 多少の補修必要 |
設備状況
| 電気 | 引き込み済み |
| ガス | プロパンガス |
| 風呂 | 灯油 |
| 水道 | 上水道 |
| 下水道 | 下水道 |
| トイレ | 水洗 |
| 車庫 | 有 |
| 物置 | 無 |
| 庭 | 有 |
| 屋根の雪処理 | 雪下ろし式 |
北陸新幹線 飯山駅まで5.8km、車で11分
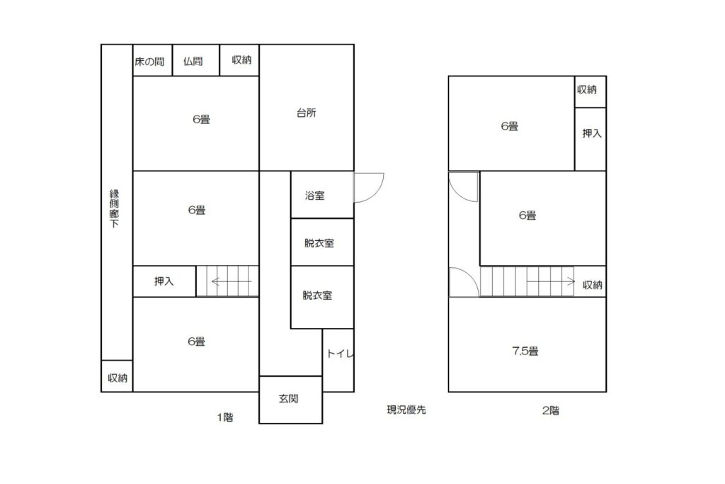
間取り図

物件所在地周辺
住宅関連の補助金:空き家バンク物件も対象
補助金 飯山市移住支援住宅建設促進事業(新築・中古住宅購入・改修補助金)
飯山市に転入して住宅を建設、または中古住宅を購入、もしくは相続等で住宅を取得して改修される方に、住宅を建設する場合は最大で150万円、中古住宅を購入する場合は最大80万円を補助します。
空き家バンク物件のお問い合わせはこちらから
物件の詳細や見学についてのお問い合わせは、以下のフォームに必要事項をご入力の上、「送信する」ボタンをクリックしてください。
複数の物件を、一度にお問い合わせいただいても構いません。
お問い合わせいただいた内容は、お客さまが入力されたメールアドレス宛に自動送信されます。
このメールが届かない場合、また数日経っても返信がない場合は、お手数ですが再度お問い合わせいただけますようお願いいたします。
送信いただいた個人情報は、飯山市ふるさと回帰支援センターのプライバシーポリシーに基づいて適正に処理いたします。
お問い合わせの前に、以下の内容につきまして、あらかじめご了承ください。ご理解のほど、よろしくお願いいたします。
お電話でもお受けしています。
飯山市役所 移住定住推進課
電話:0269-67-0740(直通・平日8:30~17:15)
飯山市役所 移住定住推進課
電話:0269-67-0740(直通・平日8:30~17:15)
このサイトはreCAPTCHAによって保護されています。Googleのプライバシーポリシーと利用規約が適用されます。
フォームの送信ができない場合は、お電話でお問い合わせください。
飯山市空き家バンクのご案内はこちら
中古住宅(売買・賃貸)一覽|土地一覧

【飯山市内に空き家や土地、賃貸希望の一軒家をお持ちの方へ】空き家バンクに物件を登録しませんか? まずは移住定住推進課までご相談ください。
空き家・土地の登録相談はこちら


